管理交流
|
|||||
|
|||||
|
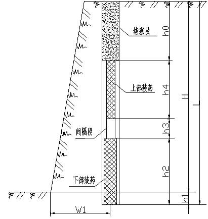
摘要:概括总结了公司近年来充分融合智能建造、科技兴安与绿色低碳理念,着力组织开发的爆破技术自主创新成果,对智能爆破系统、绿色矿山开采、抽蓄地下工程及近海软基堤坝等爆破技术应用领域的关键成果应用技术成效和所取得的社会经济效益,分析了爆破技术创新为公司高质量发展和践行央企使命担当所发挥的作用。 关键词:智能爆破 绿色矿山 地下洞室 爆炸挤淤 央企使命 1 技术攻关需求 在人类文明史上,工程爆破技术的发展,大大提高了人类改造自然的能力。中国水利史上著名的李冰,在修造都江堰时,采用了堆柴烧岩泼冷水的冷热交替法,来开凿山体,其劳作的艰辛和效率的低下,可想而知。 随着采掘业的发展,西方爆破技术持续革新,从黑火药到硝化甘油炸药,到20世纪的雷管、导爆索,再到现代应用广泛的微差爆破、控制爆破、静态爆破,现代爆破技术因其安全环保的重大影响,而与国计民生息息相关。 从雪域高原,到东海之滨,在水电十二局具有技术品牌优势的土石坝工程、抽水蓄能电站地下工程,和近海软基堤坝工程中,爆破技术成为安全、环保、高效施工的重要基础。为了适应复杂料源、破碎围岩、深厚软基等工程施工难点,需要不断组织技术攻关,创新突破。 2 关键技术成果 近年来,公司着力组织爆破技术自主创新,开发形成了经行业专家鉴定达到“国际先进”和“国内领先”水平的关键技术15项,取得省部级工法18项。经过近五年的转化推广和二次开发,公司的爆破技术创新成果还取得了专利18项、软著3项、QC成果15项,参编行业技术标准1项,获集团及省部级科技奖16项、公司级科技奖23项。 2.1 智能爆破系统 雅砻江两河口水电站位于雪域高原甘孜州雅江县,大坝为砾石土心墙堆石坝,坝高295m,目前是亚洲第二高坝。两河口大坝总填筑量达4300万立方米,如果分解成1立方米的正方体,可以绕地球一圈多。针对工程爆破施工需求,我公司与长江水利委员会长江科学院联合研发了“水电站级配料开采爆破智能设计系统”,该系统的核心为将复杂的设计与运算过程由计算机完成,设计人员只需输入初始资料、地质条件与开采要求等信息,计算机自动运算输出爆破设计,并根据工程需要对爆破级配分布、爆堆形状及爆破振动效应等进行精确预报;同时该系统搭载施工信息管理信息模块,可对爆破施工质量和爆破效果进行实时记录,计算机可根据前期的试验成果以及施工过程中不断补充的筛分或碾压检测数据,自学习的修正预报模型并给出合理的爆破设计参数。该系统成功运用于两河口水电站心墙堆石坝,为堆石料及过渡料的优质、高效、经济开采提供技术保障。 经中国爆破行业协会专家鉴定,该成果达到了“国际先进”水平,主要创新点包括:1、建立了融合岩体特征与开挖历史的爆破级配预测模型;2、提出了基于深度学习的多目标爆破优化技术;3研发了图元编程爆破智能设计系统架构与功能模块。该成果已成功应用于两河口水电站,开采坝料550万方。 2.2 绿色矿山开采 温州市瓯飞一期围垦工程位于温州市瓯江、飞云江河口间平直岸滩,围垦面积约13万亩,施工总工期为9年,工程概算约272亿元。 料场岩石岩性为流纹质玻屑晶屑凝灰岩,矿石物化性能测试为:中风化岩,矿石天然抗压强度为(干燥状态)118.1 MPa~139.3MPa,平均125.7MPa。弱风化至新鲜岩石的岩石坚固性系数f≈8~12,各指标等级均达到Ⅰ类石料质量指标要求。直接采用深孔爆破开采大块径石料产出率最高为10%~15%,无法满足下游标段大块石需求及合同要求。通过精细化爆破施工技术和矿山复绿技术,针对瓯飞矿区的岩石特点、地质条件、供料粒径等因素实行动态设计,对采区进行动态调整,对爆破方式进行差异化选用,提高了多粒径石料爆破开采效率,大块石产出率达到了32%~40%。项目被评为浙江省绿色矿山、部级爆破样板工程。 研究发现,堵塞长度是经验公式最大值的1.5倍,爆破大块径石料产出率高,此时单耗q=Q/abH=0.22Kg/m3,单孔装药量:Q=Q2+Q3=42.1+22.8=65Kg,比常规的经验单耗小,节约成本的同时有效提高了生产效率。间隔装药炮孔结构优化设计方案见图1。
图1 间隔装药炮孔结构优化设计 该成果经专家鉴定达到“国内领先”水平,主要创新点包括:深孔梯段崩塌爆破+毫秒延时逐孔起爆,上下间隔不耦合装药结构+矩形布孔,以及爆破振动、飞石和噪音控制关键技术。 2.3 抽蓄地下工程 在抽水蓄能电站建设领域,公司依托承建的浙江桐柏、长龙山、江苏溧阳,福建周宁,山东泰安等26座抽水蓄能电站,组织研发了引水系统与地下厂房洞室群施工关键技术,自主创新的大型地下厂房安全高效开挖支护技术、坚硬岩大直径陡倾角长斜井开挖技术等成果达到国际先进水平,在抽蓄工程领域的技术品牌,为水电十二局承建宁海、抚宁、天台等工程发挥了开拓市场的科技先导作用。 以周宁抽水蓄能电站为例,其地下厂房中导洞爆破孔位优化设计方案见图2,厂房顶拱变形观测数据见表1。
图2 周宁抽蓄工程地下厂房中导洞爆破孔位优化设计 表1 厂房顶拱变形观测表
监测表明,四个月的累计孔口位移达到-0.019mm~0.732mm,累计孔口位移较小,变化趋势无异常,关键技术应用效果良好。 2.4 海堤爆炸挤淤 在中国1.6万公里的大陆海岸线上,台风、寒潮等自然灾害频发。以标准海塘、渔港防波堤为代表的海堤工程,为保护人民生命财产安全发挥了重要作用。在20多年的时间里,公司承建了海堤工程60多项,积累了丰富的近海软基堤坝施工经验。 公司组织研发了复杂海况下超深软基处理与深水筑堤关键技术,首创提出了“悬浮式”海堤爆破参数设计方法和“侧爆推进”新工艺,在国内首次实现了爆破挤淤软土置换深度超过30m。成果已广泛推广应用。 循环爆破抛填石筑堤过程见图3,堤头抛填布药优化设计见图4。
图3 循环爆破抛填石筑堤过程示意图
图4 堤头抛填布药优化设计 3 社会经济效益 通过研究建立爆破技术成果综合评价体系,公司对自主创新的爆破技术进行了安全、环保、质量、经济四个方面八个效益点的四级评价,便于策划实施进一步的推广应用。综合效益评价见表2。 表2 综合效益评价表
经测算,公司爆破技术创新成果的应用,能够在全公司范围内每年产生5000万元以上的增收节支效益,并以核心技术为公司承揽新工程带来市场机遇。非煤矿山爆破工法碳排放量见表3。 表3 非煤矿山爆破工法碳排放量计算
更为重要的是,绿色、智能爆破施工技术的推广应用,所取得的安全、环保等社会效益不可估量,为公司树立良好社会形象奠定了坚实基础。 结语 智建兴安工匠志,山海惊雷筑丰碑。水电十二局爆破技术的自主创新发展,充分融合了智能建造、科技兴安和绿色低碳理念,为公司践行央企使命担当,持续贡献着科技驱动力,并为公司高质量发展保驾护航,助力公司在华夏大地上,筑造着一座又一座优质工程的丰碑。 【责任编辑:周磊】 |
|||||
| 【打印】【关闭】 |
|||||
上一条:
基于BIM的滤池管道碰撞检测实例应用
下一条:
创建“无违章示范作业面”的宁海经验
|
